Nedešćina, građevinsko zemljišta s projektima za izgradnju dvije ville s bazenom, lokacijske dozvole!
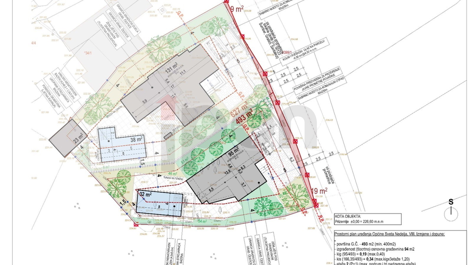
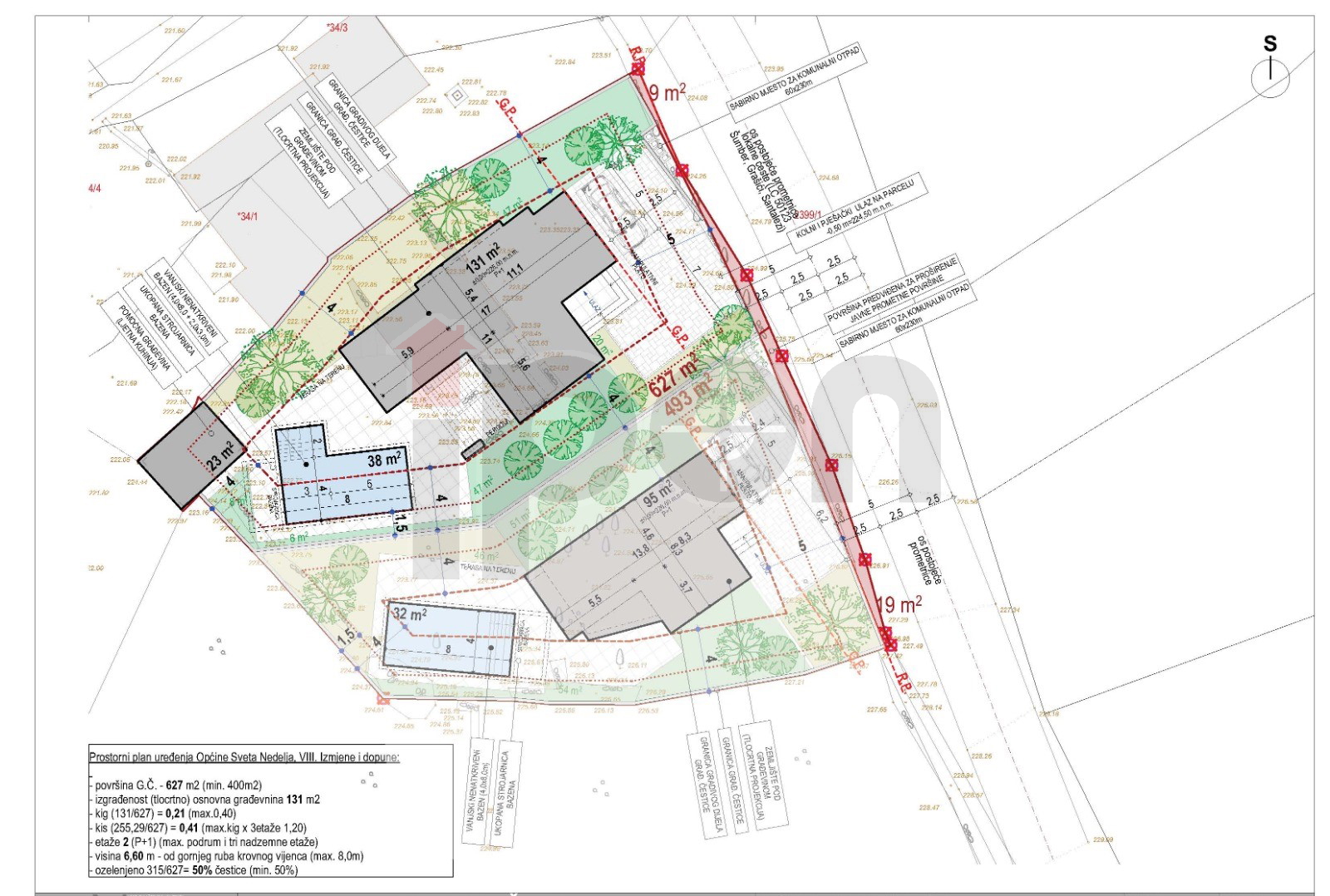
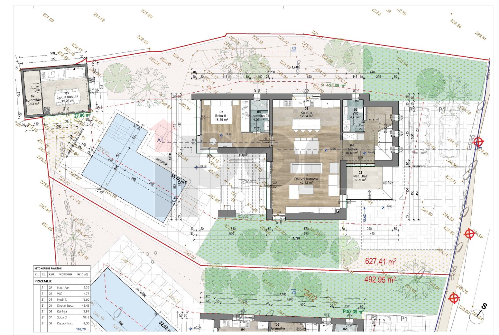
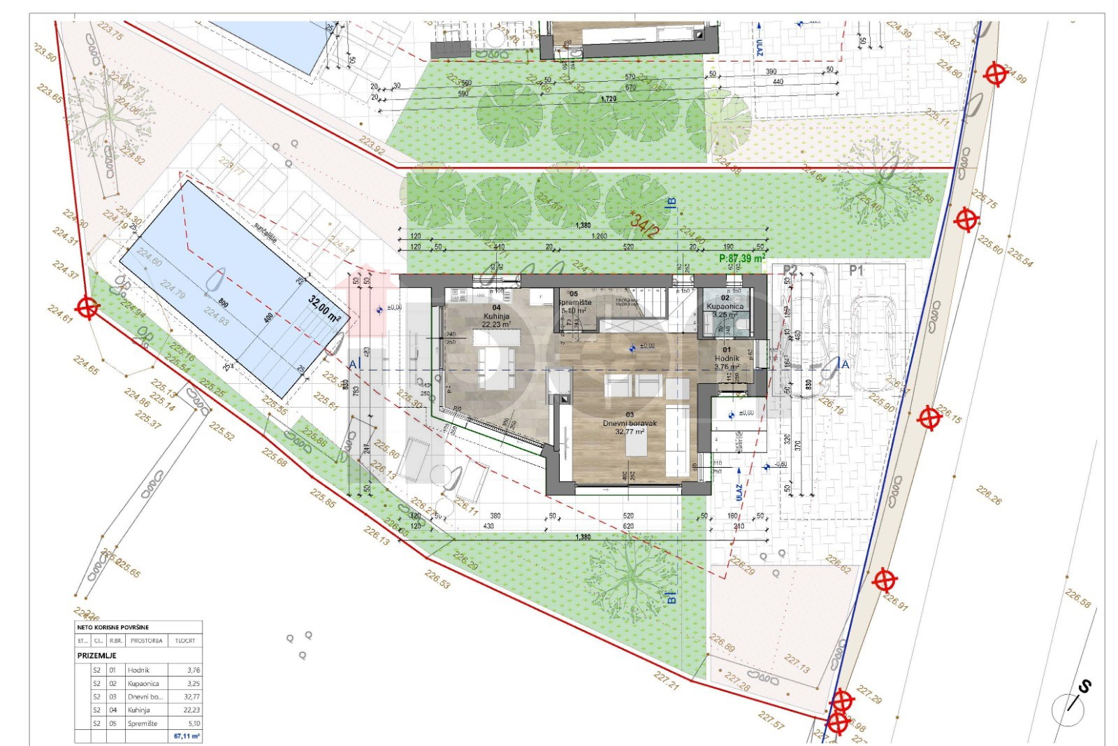
Našim potencijalnim klijentima nudimo mogućnost kupnje dva građevinskog zemljišta na području Općine Sveta Nedjelja-Nedešćina u Istarskoj županiji. Tržištu se ova nekretnina nudi sa lijepim projektima za izgradnju villa sa bazenima pod nazivom "VILLA SHON" i "VILLA BERG". U tijeku je ishođenje lokacijskih dozvola za navedene projekte, po kojima će biti predviđena izgradnja modernih samostojećih villa sa bazenima. Svaka vila će biti izgrađena na dvije nadzemne etaže, sa pripadajućim podrumima. Na svakoj parceli su predviđena po dva parkirna mjesta. Projekti su zamišljeni moderno, kao jedinstven uporabne cjeline. Ukupan smještajni potencijal oba projekta je sedam dvokrevetnih spavaćih soba, ukupno 14 osoba. Većina soba ima sukladno projektu vlastite kupaonice. Sama lokacija ove nekretnine vrlo je zanimljiva, jer se nalazi unutar jednog manjeg zaselka s nekoliko kuća, u potpunosti okružena nedirnutom prirodom, a s druge strane dobro povezana lokalnom prometnicom kojom se vrlo lako i brzo stiže do Labina, Rapca, Plomina i Pazina. To je čini atraktivnom i za eventualnu turističku valorizaciju.
Napomene:
U tijeku je postupak izdavanja lokacijske dozvole za gore opisani objekt pred nadležnim uredom za urbanizam i građenje.
U cijenu nije uračunat PDV!
